Notice of Public Meeting - 1087 North Morrison Lake Road - Seipt
NOTICE OF COMPLETE APPLICATION AND OF PUBLIC MEETING
CONCERNING A PROPOSED AMENDMENT TO ZONING BY-LAW 10-04 (as amended)
OF THE TOWN OF GRAVENHURST
Respecting an application by Rene and Kimberly SEIPT
to rezone lands located at 1087 NORTH MORRISON LAKE ROAD (MORRISON LAKE)
(Application No. ZA 08-2025)
TAKE NOTICE THAT a complete application has been accepted under Section 34 of the Planning Act, R.S.O.1990, Chapter p. 13, as amended, regarding the above noted property.
ADDITIONALLY, TAKE NOTICE THAT the Council of the Corporation of the Town of Gravenhurst will hold a Public Meeting in relation to the application on
TUESDAY, OCTOBER 28, 2025
at 3:00 p.m. at the
Gravenhurst Municipal Offices
(Council Chambers)
5 Pineridge Gate, Gravenhurst, Ontario
THE PURPOSE of the Public Meeting will be to consider a proposed amendment to Zoning By-law 10-04 (as amended) of the Town of Gravenhurst pursuant to the provisions of Section 34 of The Planning Act, R.S.O. 1990, Chapter P.13, as amended.
THE FOLLOWING INFORMATION is attached to this notice for your information and review:
- an explanation of the Purpose and Effect of the Proposed By-law;
- a key map showing the location of the property affected by the Proposed By-law; and
- a sketch (Schedule).
ANY PERSON OR AGENCY may attend the Public Meeting and/or make written submissions either in support or opposition to the Proposed By-law.
ALTERNATIVELY, ANY PERSON OR AGENCY may also provide verbal comments during the meeting electronically using MVI EasyConf Connect Conference System (NOT Zoom), in accordance with Section 238 of the Municipal Act and the Town’s Procedural By-law.
A request to address Planning Council electronically must completed at www.Gravenhurst.ca/PublicParticipation and submitted prior to 12:00pm (noon) on the day before the Public Meeting. Please note that the public meeting is taking place in person and any issues with electronic participation will not prevent the meeting (and a potential decision) from proceeding.
IF A SPECIFIED PERSON OR PUBLIC BODY would otherwise have an ability to appeal the decision of the Town of Gravenhurst to the Ontario Land Tribunal, but the specified person or public body does not make oral submissions at a public meeting or make written submissions to the Town of Gravenhurst, before the Zoning By-law is passed, the specified person or public body is not entitled to appeal the decision.
IF A SPECIFIED PERSON OR PUBLIC BODY does not make oral submissions at a public meeting or make written submissions to the Town of Gravenhurst, before the Zoning By-law is passed, the specified person or public body may not be added as a party to the hearing of an appeal before the Ontario Land Tribunal unless, in the opinion of the Tribunal, there are reasonable grounds to do so.
IF YOU WISH TO BE NOTIFIED of the decision of the Town of Gravenhurst in respect of the proposed By-law, you must make a written request to Melissa Halford, Director of Development Services
ADDITIONAL INFORMATION relating to the proposed amendment to Zoning By-law 10-04 is available from the Development Services – Planning Division. For further information, please contact Andrew Clark, Planner, at 705-687-3412 ext. 2229 (andrew.clark@gravenhurst.ca) or Adam Ager, Manager of Planning Services, 705-687-3412 ext. 2224 (adam.ager@gravenhurst.ca) during office hours.
DATED at the Town of Gravenhurst this 8th day of October, 2025.
Melissa Halford, Director of Development Services.
Purpose and Effect of the Proposed Zoning By-law
Re: Application No. ZA 08-2025
SEIPT, Rene and Kimberly
Roll No. 020-045-04000
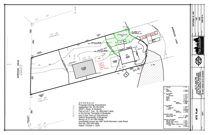
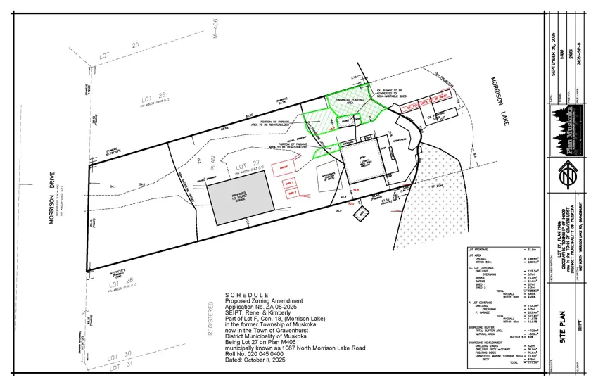
An application was received to amend the zoning of the lands municipally known as 1087 North Morrison Lake Road.
The applicant is proposing to construct a two-storey Garage with an upper storey Sleeping Cabin, while removing three accessory structures and converting an existing Sleeping Cabin into a Shoreline Storage Building as shown on the attached sketch dated October 8, 2025. The proposed development requires the following relief from Zoning By-law 10-04, as amended:
- Permit a maximum lot coverage of 16.6% within 60.0 metres of the Optimal Summer Water Level, where 13.0% is permitted.
- Permit a minimum side lot line setback of 3.0 metres for a two-storey detached Garage with an upper storey Sleeping Cabin, where 6.0 metres is permitted.
- Permit a maximum Shoreline Development Area of 141.7 square metres, where 138.0 square metres is permitted.
- Permit a Dock to be setback 4.8 metres from the Environmental Protection (EP) Zone, where 10.0 metres is required.
- Permit a minimum Shoreline Buffer of 45.0% of the area within 20.0 metres of the Optimal Summer Water Level, where 75.0% is required
The property is legally described as Part of Lot F, Concession 18, in the former Township of Wood, now in the Town of Gravenhurst, District Municipality of Muskoka, being Lot 27 on Plan M406 (Zoning Grid Schedule No. G03).
The property is located within the Waterfront Area designation of the Town of Gravenhurst Official Plan.


Contact Us
Town of Gravenhurst
3-5 Pineridge Gate
Gravenhurst ON P1P1Z3
T: 705-687-3412
TF: 1-855-687-3412
info@gravenhurst.ca